1
  Lycée professionnel.
Pavillon-sous-Bois

2
  Réhabilitation.
Saint-Maurice
3
  Extension
Noisy-le-Sec

 

 
4
  Crèche.
Clichy

5
  Crêche St Antoine.
Paris 12 ème
6
  Collège René Cassin
Chanteloup-les-Vignes
7
  Crèche Henri Vallon
Montreuil-sous-Bois
 

 
8
  Crèche Riquet
Paris 19 ème

9
  Lycée La Bruyère.
Versailles
10
  Maternelle Netter
Paris 12 ème
     

   
- Assistance Publique - Hôpitaux de Paris (AP-HP) -
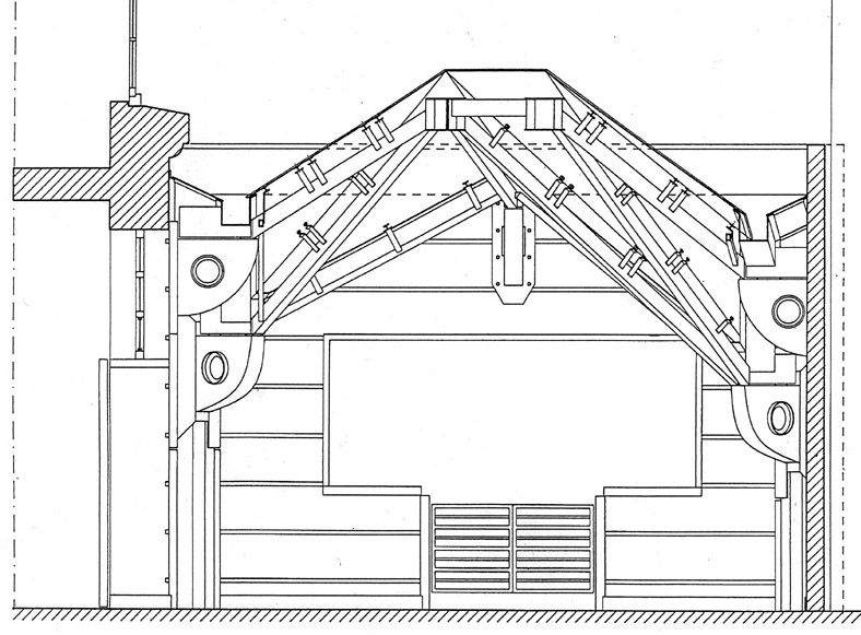
5. Crêche Saint-Antoine
Hôpital Saint-Antoine, 184, rue du Fg Saint-Antoine; 75011 Paris
2 100 m2 - 65 berceaux pour le personnel de l'hôpital
   




La rénovation de la crêche de l'hôpital Saint-Antoine a pour ambition de susciter chez l'enfant l'éveil de l'imaginaire.
Dans la zone "nourissons", la salle de jeu, autrefois cour intérieure, est couverte par une verrière de métal et de verre collé. Le dessin de cette verrière évoque le monde végétal : l'éclairage artificiel participe au graphisme des branches. On retrouve ce même souci de l'éveil de l'enfant dans le traitement du plafond de la circulation principale, où le staff a été sculpté pour suggérer des formes animales.