1
  Ateliers d'artistes.
Paris 13 ème
2
  10 logements sociaux.
St.-Pierre et Miquelon
3
  52 logements locatifs.
Cabourg
4
  Maison Baron.
Fresnes Cauverville

 
5
  Logements étudiants.
Aubervilliers
6
  Résidence étudiante.
Saint-Maur-des-Fossés
7
  Pavillons collectifs.
Roye
8
  Ateliers d'artistes.
Paris 20 ème

 
9
  Réhabilitation pour enfants
psychotiques.
Paris 15 ème
10   34 logements sociaux.
St-Cyr l'Ecole
11
  Réhabilitation 187 Logements.
Paris 19 éme
12
  24 Ateliers d'artistes.
Paris 20 eme

 
13
  Logements / ateliers d'artistes / commerce.
Paris 18 ème
14
  Résidentialisation de 207 Logements.
Vigneux
15
  Logements étudiants et 8 Maisons de Ville.
Paris 19 éme
16
  Logements CRS & restauration collective.
Paris 18 ème

   
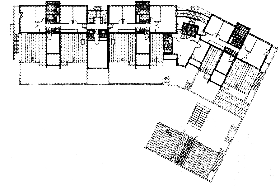
Département de la Somme - CILOVA Compiègne
7. Réalisation de 21 logements collectifs en R.E.X.

Quartier de Champs d'Enfer - 80 700 Roye.

   
Cette réalisation, d'une vingtaine de logements, s'appuie sur le contexte rural pour donner forme à un ensemble dont les proportions respectent un principe de continuité entre minéral et végétal.
Le volume de chaque maison est décomposé dans le plan vertical en 2 parties, correspondant pour l'une à la trame humide, pour l'autre à la trame sèche. Cette zone spécifique permet un bon isolement phonique, une sérieuse prévention contre les risques de propagation du feu et une concentration de la plomberie.
L'organisation systématique des appartements en semi-duplex offre une réponse simple et économique au souhait de marquer ces fonctions tout en gardant une transparence spaciale.