1
Ateliers d'artistes.
Paris 13
ème
2
10 logements sociaux.
St.-Pierre et Miquelon
3
52 logements locatifs.
Cabourg
4
Maison Baron.
Fresnes Cauverville
5
Logements HLM.
Aubervilliers
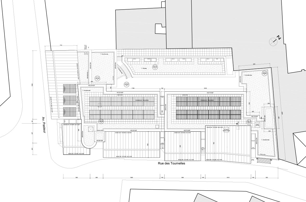
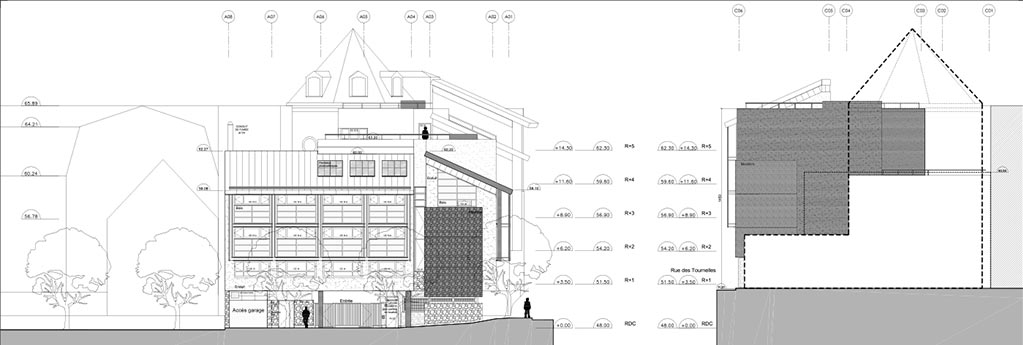
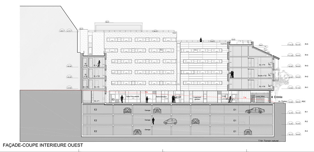
6
Résidence étudiante.
Saint-Maur-des-Fossés
7
Pavillons collectifs.
Roye
8
Ateliers d'artistes.
Paris 20
ème
9
Réhabilitation pour enfants
psychotiques.
Paris 15
ème
10
34 logements sociaux.
St-Cyr l'Ecole
11
Réhabilitation 187 Logements.
Paris 19
éme
12
24 Ateliers d'artistes.
Paris
20
eme
13
Logements / ateliers d'artistes / commerce.
Paris 18
ème
14
Résidentialisation de 207 Logements
.
Vigneux
15
Logements étudiants et 8 Maisons de Ville.
Paris 19
éme
16
Logements CRS & restauration collective.
Paris 18
ème
- SIEM de St Maur-des-Fossés / SCET -
6.
Résidence étudiante de 97 logements
9-11 Ave Pasteur 94100 Saint-Maur-des-Fossés
Retour page d'accueil
Haut de page
Contact
: atelier.brunel@wanadoo.fr