1
  180 lits long séjour.
Vannes
2
  Maison de retraite.
Lannion
3
  Extension d'hôpital.
Alençon
4
  Restaurant central.
Bobigny

 
5
  Laverie-buanderie d'hôpital.
Hendaye
6
  Lieu de vie.
Hendaye
7
  Centre Bois-Guillaume
Bois-Guillaume
8
  Unité d'ophtalmologie
Paris 10 ème

 
9
  EHPAD de 80 lits avec Unité Alzheimer
Cherbourg
10   EHPAD de 124 lits avec Unité Alzheimer
Chartres
11
  Maison de santé et de cure médicale
Lallaing
12
  42 lits de gériatrie avec unité Alzheimer
Eaubonne
13
  EHPAD de 170 avec Unité Alzheimer
Douarnenez

 
14
  EHPAD de 83 logements avec Unité Alzheimer.
Nantes
15
  EHPAD de 87 lits avec Unité Alzheimer
Saumur
16
  Extention de Maison de retraite
La Bouéxière
17
  Rénovation Extérieure
Vire
18
  Réhabilitation de l'INR
Saint-Maurice


   
- - Assistance Publique des Hopitaux de Paris
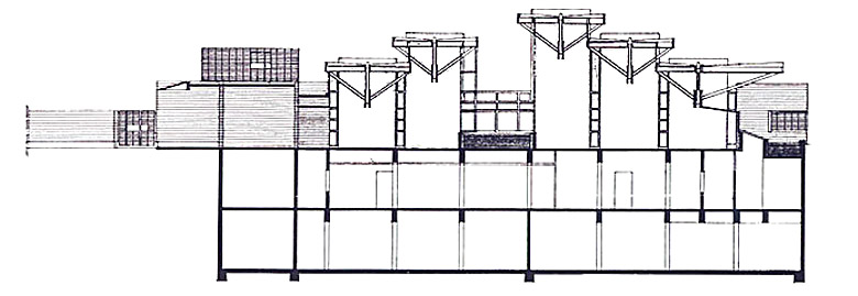
4. Restaurant central de l'hôpital Avicenne
125, route de Stalingrad 93 000 Bobigny (Seine-Saint-Denis)

   






Le personnel dispose d'un accès direct sur le jardin en espalier, permettant ainsi un travail dans de bonnes conditions. Le grand volume du self est constitué de 5 charpentes tenues de chaque côté par de grands voiles de béton brut de décoffrage, et des façades porteuses constiuées de blocs de parement architectoniques avec une isolation par l'extérieur pour un rendement calorifique optimal. L'ensemble du bâtiment suit la logique d'un système poteaux-poutre, pour assurer le changement d'affectation des locaux dans le temps, tout en évitant la présence trop lourde de voiles porteurs.