1
  180 lits long séjour.
Vannes
2
  Maison de retraite.
Lannion
3
  Extension d'hôpital.
Alençon
4
  Restaurant central.
Bobigny

 
5
  Laverie-buanderie d'hôpital.
Hendaye
6
  Lieu de vie.
Hendaye
7
  Centre Bois-Guillaume
Bois-Guillaume
8
  Unité d'ophtalmologie
Paris 10 ème

 
9
  EHPAD de 80 lits avec Unité Alzheimer
Cherbourg
10   EHPAD de 124 lits avec Unité Alzheimer
Chartres
11
  Maison de santé et de cure médicale
Lallaing
12
  42 lits de gériatrie avec unité Alzheimer
Eaubonne
13
  EHPAD 170 lits avec Unité Alzheimer
Douarnenez

 
14
  EHPAD de 83 logements avec Unité Alzheimer.
Nantes
15
  EHPAD de 87 lits avec Unité Alzheimer
Saumur
16
  Extention de Maison de retraite
La Bouéxière
17
  Rénovation Extérieure
Vire
18
  Réhabilitation de l'INR
Saint-Maurice


   
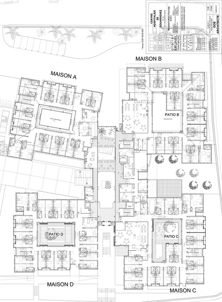
- Centre Hospitalier de Douarnenez / SAFI

13. EHPAD de 170 Lits avec Unité Alzheimer

Douarnenez (29) Finistère.

   



4 maisons avec patios pour personnes âgées en liaison avec une nef centrale. « La vieillesse ne nous rendant pas tous semblables », imagination fonctionnelle pour accueillir des résidents aux affinités communes selon 4 constructions indépendantes. La nef est portée par une ossature bois poteaux-poutres, symbole des mâts de navire où Douarnenez était encombrée de goélettes. Bow-windows en bois de mélèze avec larges fenêtres pour mieux voir la mer et la baie de Crozon.