1
  180 lits long séjour.
Vannes
2
  Maison de retraite.
Lannion
3
  Extension d'hôpital.
Alençon
4
  Restaurant central.
Bobigny

 
5
  Laverie-buanderie d'hôpital.
Hendaye
6
  Lieu de vie.
Hendaye
7
  Centre Bois-Guillaume
Bois-Guillaume
8
  Unité d'ophtalmologie
Paris 10 ème

 
9
  EHPAD de 80 lits avec Unité Alzheimer
Cherbourg
10   EHPAD de 124 lits avec Unité Alzheimer
Chartres
11
  Maison de santé et de cure médicale
Lallaing
12
  42 lits de gériatrie avec unité Alzheimer
Eaubonne
13
  EHPAD de 170 avec Unité Alzheimer
Douarnenez

 
14
  EHPAD de 83 logements avec Unité Alzheimer.
Nantes
15
  EHPAD de 87 lits avec Unité Alzheimer
Saumur
16
  Extention de Maison de retraite
La Bouéxière
17
  Rénovation Extérieure
Vire
18
  Réhabilitation de l'INR
Saint-Maurice


    .
- Assistance Publique -

6.
Extension de l'hôpital pour enfants psychotiques
Pavillon Trousseau - 64700 Hendaye

   
 

 

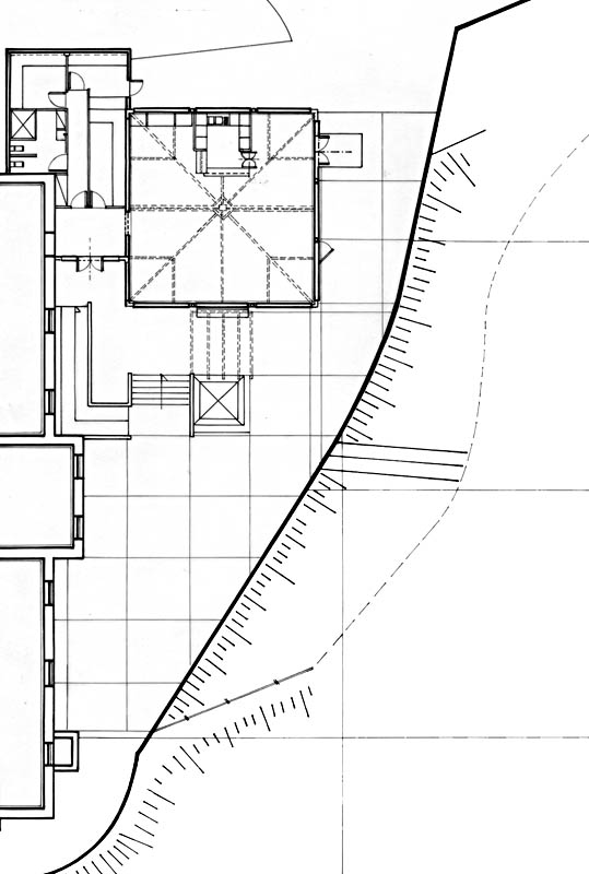
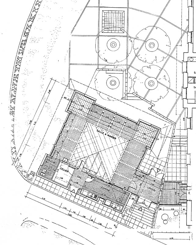
Le Pavillon Trousseau est situé dans la partie haute de l'hopital. Il domine le panorama maritime. Des pins et des platanes entourent la construction qui accueille 3 sections d'enfants psychotiques profonds non handicapés physiques. Le parti architectural consistait à édifier au sud du bâtiment existant, comprenant les dortoirs, un bâtiment "satellite", renfermant la salle à manger et la cuisine thérapeutique, afin de distinguer les activités diurnes et les activités nocturnes. Ce bâtiment "satellite" fait écho à un petit pavillon situé au nord de la bâtisse principale et lui répond dans son tracé formel par un carré parfait. Le plan se met en forme selon 4 matériaux : une embase en béton bouchardé, 4 angles de pierres de Rhune fortement exprimés, des poteaux cylindriques traités au sel de cuivre, ponctuent les façades entre les puissants angles minéraux. La toiture décollée des traitements angulaires est en tuiles blanches vernissées.
Un quadillage se dessine sur le sol de la cour, et lui donnant un aspect ludique, tout en rappelant le tracé d'anciennes constructions similaires, dont les traces de fondations seraient plus ou moins discernables
.